fbpx Termoizolim | MANGALEM 21

ikonat lart

test

Termoizolim

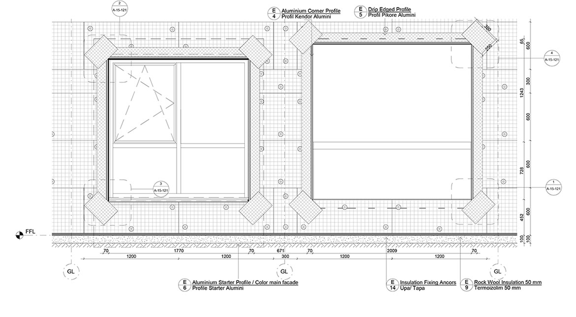
Termoizolimi i fasadës realizohet me lesh guri me trashësi 70 mm të vendosur mbi muraturën 400 mm. Leshi i gurit është rezistent kundrejt agjentëve atmosferikë, zjarrit, ndotjes akustike dhe ndotjes së ajrit. Struktura poroze dhe e hapur, e përbërë nga fibra rezistente deri në temperaturë 1000° c, krijon një barrierë termike dhe akustike. Ky sistem siguron reduktim të konsumit të energjisë deri në 60% dhe siguri më të madhe teknike

Kërko njësinë tënde

X

Çmime

Apartamente duke filluar nga:
800 Euro/m2

Dyqane duke filluar nga:
1,150 Euro/m2

Parkime:
500 Euro/m2