fbpx Pllaka | MANGALEM 21

ikonat lart

test

Pllaka

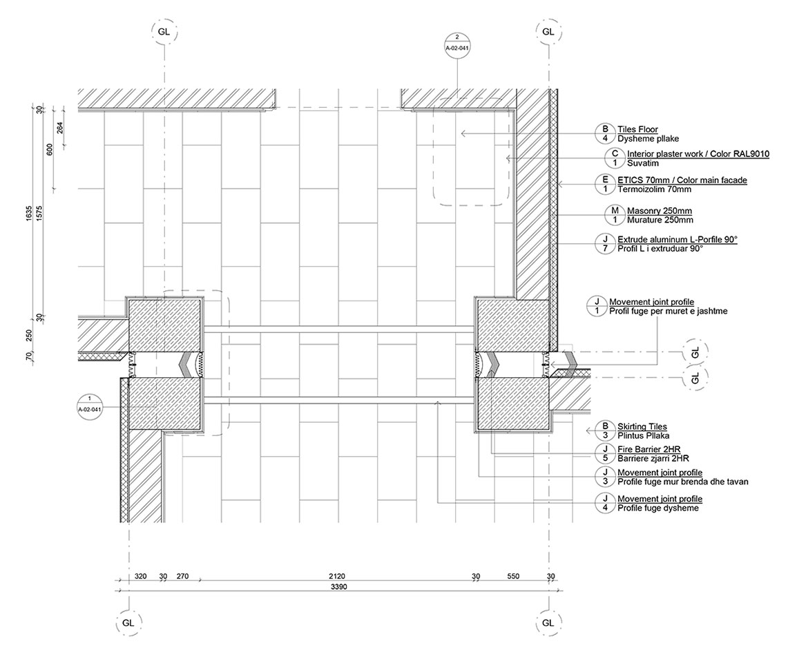
Pas aplikimit të nënshtresës mbi soletë për mbulimin e instalimeve elektrike dhe hidraulike, realizohet shtrimi me pllaka qeramike me dimension 1200x600 mm. Ngjyra e pllakave kombinohet në mënyrë perfekte me interiorin e korridoreve ku do te aplikohen. Këto pllaka mirëmbahen lehtësisht, duke siguruar jetëgjatësi më të madhe për hapësirat e përbashkëta që kanë një fluks të madh lëvizjeje.

Kërko njësinë tënde

X

Çmime

Apartamente duke filluar nga:
800 Euro/m2

Dyqane duke filluar nga:
1,150 Euro/m2

Parkime:
500 Euro/m2