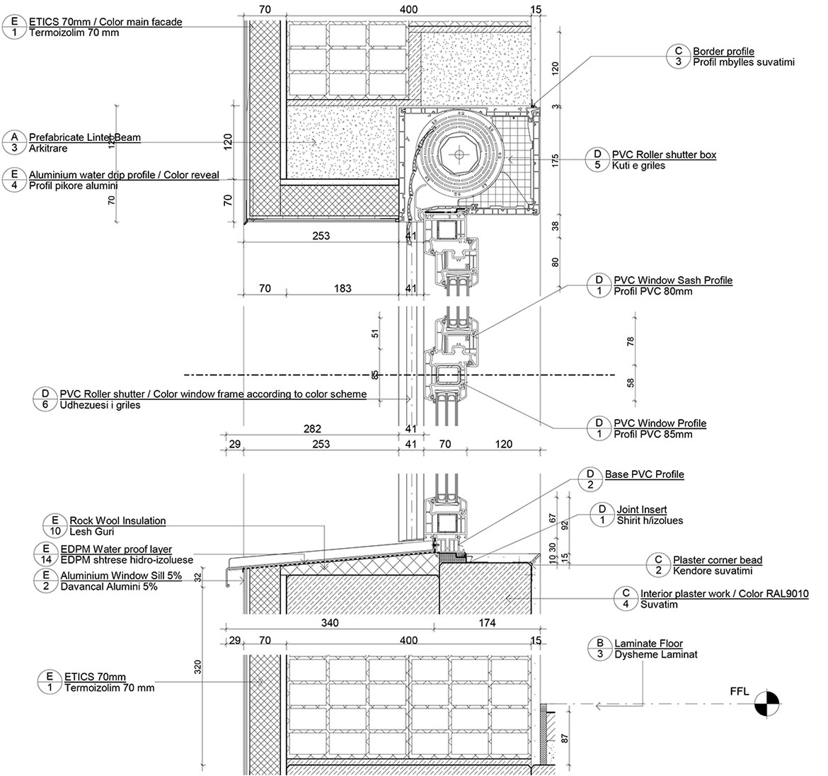
Aluminum double glazed, aluminum window and aluminum grille with standard dimensions 1770x1755 mm. The color of the window profile in the interior is white, while the exterior is in the color palette consisting of 14 pigments. Perfect aesthetic and technical combination to ensure harmony with façade colors, thermal, acoustic and moisture proofing.